For sale £725,000 - Detached
Georgian style former Manor House comprising 5 bedrooms: 3 Reception rooms: 3 Shower rooms: Modern fitted kitchen all set in 3 acres or thereabouts bounded by the Dyfi River with far reaching valley views.
VERANDAH Running the complete width of the front of the property, slate slab floor.
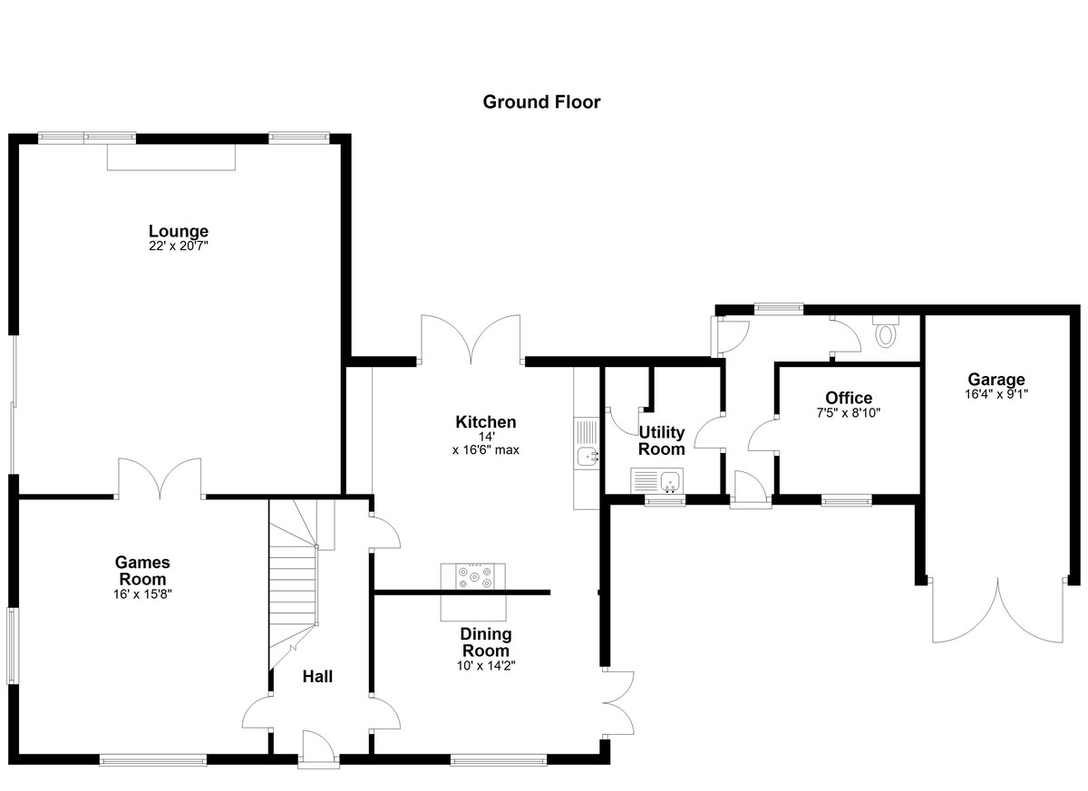
HALLWAY Attractive swirling staircase with matching hand rail rising to first floor, cupboard under. Original stripped pine panel doors off. Moulded cornice.
GAMES ROOM 15′ 8″ x 16′ (4.78m x 4.88m) Ceramic Art Nouveau style open fireplace. Moulded cornice. Two windows with shutters. Double door opening into)
LOUNGE 20′ 7″ x 22′ (6.27m x 6.71m) Brick chimneybreast with inglenook dog grate , canopy and tiled hearth. Two rear windows having river and valley aspect. Curved cornice. Two panel radiators.
DINING ROOM 14′ 2″ x 10′ (4.32m x 3.05m) plus chimney alcove. Ornamental open fireplace. Front window and side French doors onto drive. Electric panel central heating radiator. Moulded cornice. Arch opening into:-
KITCHEN/BREAKFAST ROOM 16′ 6″ x 14′ (5.03m x 4.27m) Newly fitted base and wall units extending to two walls with inset coloured coded single drainer sink unit. Integrated dishwasher. Space for upright fridge/freezer. Electric oven range located into former fireplace. French doors onto rear garden and patio area overlooking river. Electric panel radiator.
FIRST FLOOR
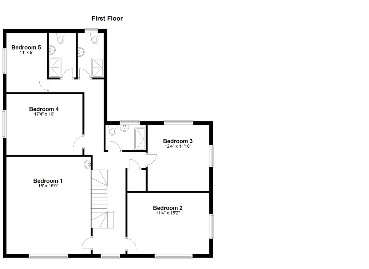
LANDING Window to front.
MASTER BEDROOM 15′ 9″ x 18′ (4.8m x 5.49m) Wash hand basin. Tiled fireplace. Electric panel radiator.
BEDROOM 2 15′ 2″ x 11′ 4″ (4.62m x 3.45m) Front & side windows. Fitted pine door wardrobe Tiled fireplace. electric panel radiator.
REAR LANDING Deep fitted airing cupboard.
BEDROOM 3 11′ 10″ x 12′ 4″ (3.61m x 3.76m) Stunning river & Valley views from rear window, side window. Fitted wardrobe. Electric panel radiator.
BATHROOM 3 piece suite comprising bath on legs with central shower mixer tap. Pedestal wash hand basin. Low flush WC: Window. Two walls fully panelled.
BEDROOM 4 17′ 4″ x 10′ (5.28m x 3.05m) Stunning views down Valley. Vanity wash hand basin. Electric panel radiator.
BEDROOM 5 9′ x 11′ 7″ (2.74m x 3.53m) Stunning valley views. Electric panel radiator.
SHOWER ROOM 5′ x 8′ 2″ (1.52m x 2.49m) Large shower cubicle with electric shower unit. Low flush WC: Pedestal wash hand basin. Towel rail.
SHOWER ROOM Large shower cubicle Low flush WC: Pedestal wash hand basin. Electric panel radiator. Fully tiled walls.
SEPARATE ACCESS
UTILITY ROOM 7′ 3″ x 7′ (2.21m x 2.13m) Terrazzo tiled floor. Double drainer stainless steel sink unit. Plumbing for dishwasher & washing machine under work surface.
WALK IN PANTRY Terrazzo tiled floor. Slate slab
OFFICE 8′ 10″ x 7′ 5″ (2.69m x 2.26m) Night storage heater
REAR LOBBY Door to back garden
TOILET High flush WC
OUTSIDE Privately set beyond front paddock and approached via a tree lined carriage way drive with pillared entrance and gates opening onto tar-macadam fore court laid to front lawn with shrubs and bushes.
a gravel path gives access to both sides and to rear lawn with beautiful steps down over 5 separate tiers to the Banks of the Dyfi River.
In all the grounds are said to extend to approximately 3 acres.
GARAGE 9′ 1″ x 16′ 4″ (2.77m x 4.98m) Electric light and power
TIMBER SHED 16′ x 8′ (4.88m x 2.44m)
SERVICES mains electric & water. Private drainage. Electric panel radiators on individual thermostat and timers. All window are UPVC double-glazed.
COUNCIL TAX Band ‘H’
VIEWING Via agent’s office
Jim Raw-Rees & Co
1 Chalybeate Street
Aberystwyth
Ceredigion SY23 1HS
(10970) 617179
24-hour answer phone






















































































